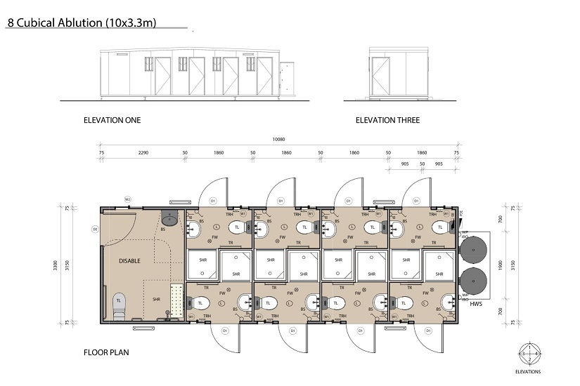
ISO Containerized ablution units
Promore Global can offer a wide a range of modified ablutions containers, for a combination of male/female ablutions, ablutions blocks with changing room facilities, or larger units to cater for entire camps. These ablution units can be customized to many layouts and can contain additional showers, basins, and urinals in ceramic or stainless steel configurations for your specific requirements.
Portable Cabins
These cabins are the most convenient and give optimal solutions for the customer as it can be transported and re- located to other areas with ease. Portable cabins are designed and developed on the basis of ISO specifications with user friendly conditions in mind. The structural stability, earth quake resistant, weather resistant, and leak resistant and give faultless operation under extremely harsh climatic conditions.
Flat pack building
All our flat pack buildings are panelized modular units that offer a flexibility to combine units as desired so as to create an expandable environment to fit your every requirement. Flat-pack units can be adjoined to create a lager footprint or are stackable upon themselves to create levels of affordable work and recreation space. Ease of transport, erection and movability are prime considerations for today’s fast paced and demanding military requirements.
Promore Global can offer a wide a range of modified ablutions containers, for a combination of male/female ablutions, ablutions blocks with changing room facilities, or larger units to cater for entire camps. These ablution units can be customized to many layouts and can contain additional showers, basins, and urinals in ceramic or stainless steel configurations for your specific requirements.
Portable Cabins
These cabins are the most convenient and give optimal solutions for the customer as it can be transported and re- located to other areas with ease. Portable cabins are designed and developed on the basis of ISO specifications with user friendly conditions in mind. The structural stability, earth quake resistant, weather resistant, and leak resistant and give faultless operation under extremely harsh climatic conditions.
Flat pack building
All our flat pack buildings are panelized modular units that offer a flexibility to combine units as desired so as to create an expandable environment to fit your every requirement. Flat-pack units can be adjoined to create a lager footprint or are stackable upon themselves to create levels of affordable work and recreation space. Ease of transport, erection and movability are prime considerations for today’s fast paced and demanding military requirements.

